
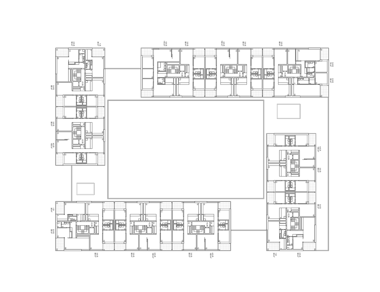
BRÜNNEN BAUFELD 5 BERN 2016
Offener Projektwettbewerb
Landschaftsarchitekten:
Iten Landschaftsarchitekten GmbH
Wohnüberbauung
Gemeinschaftsnutzung
Gewerbe
Projektteam:
Renzo Bader, Magdalena Winiarz,
Fabio Bernasconi
Auftraggeber:
Bauherrengemeinschaft Baufeld 5






