
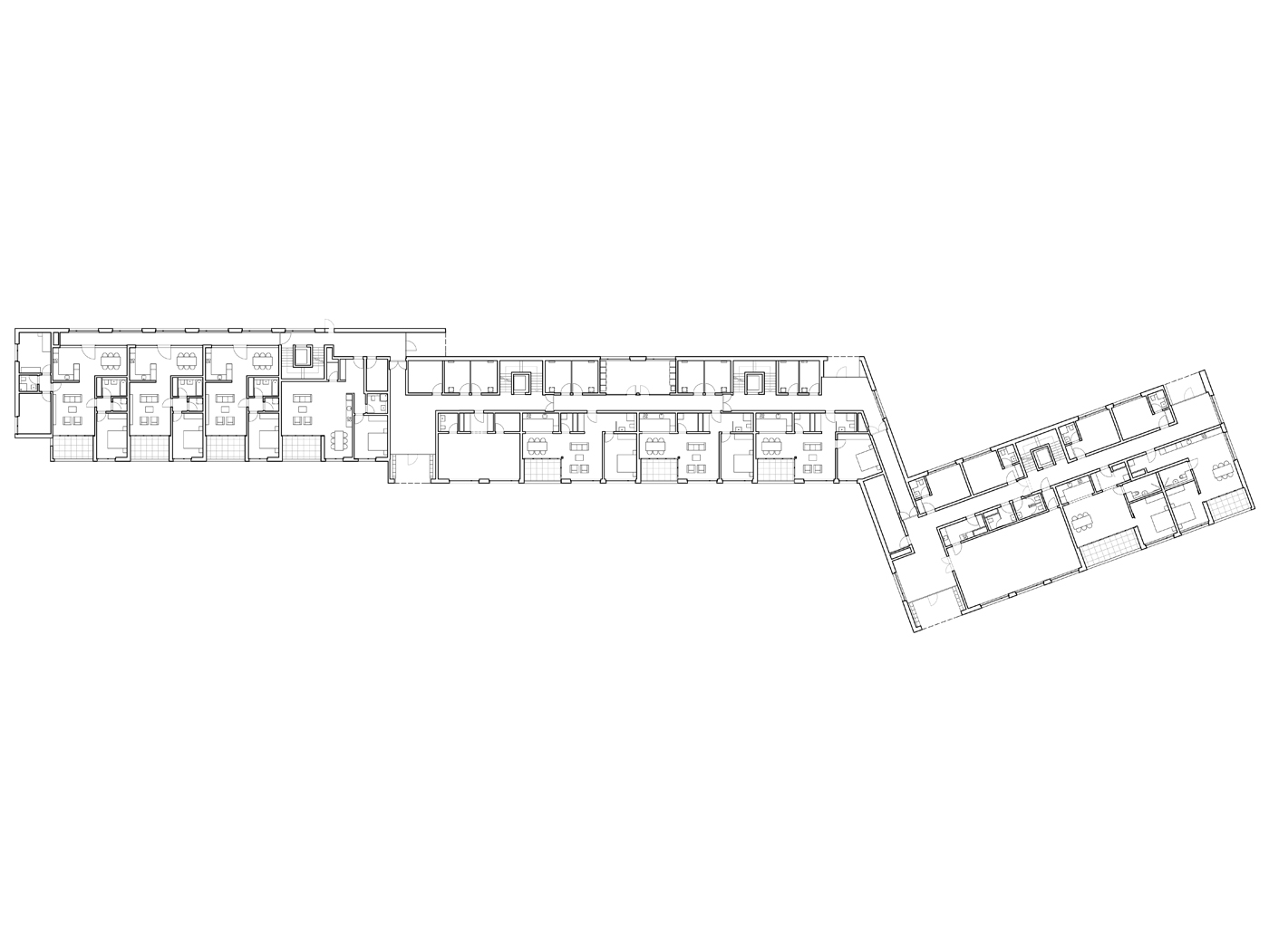
CARMEL MENZINGEN 2015
Ausführung konventionell
Landschaftsarchitekten:
Fontana Landschaftsarchitektur GmbH
Wohnüberbauung
Gemeinschaftsnutzungen
Grossverteiler
Projektteam:
Renzo Bader, Ricardo Alves, Diana Espitia, Magdalena Winiarz, Miguel Setas
Bauherrschaft:
Institut Menzingen
Baukosten:
ca. 50 Mio. CHF
Bauzeit:
27 Monate
















