ERSATZNEUBAU BAUGEWERBLICHE BERUFSSCHULE ZÜRICH 2018

Offener Projektwettbewerb

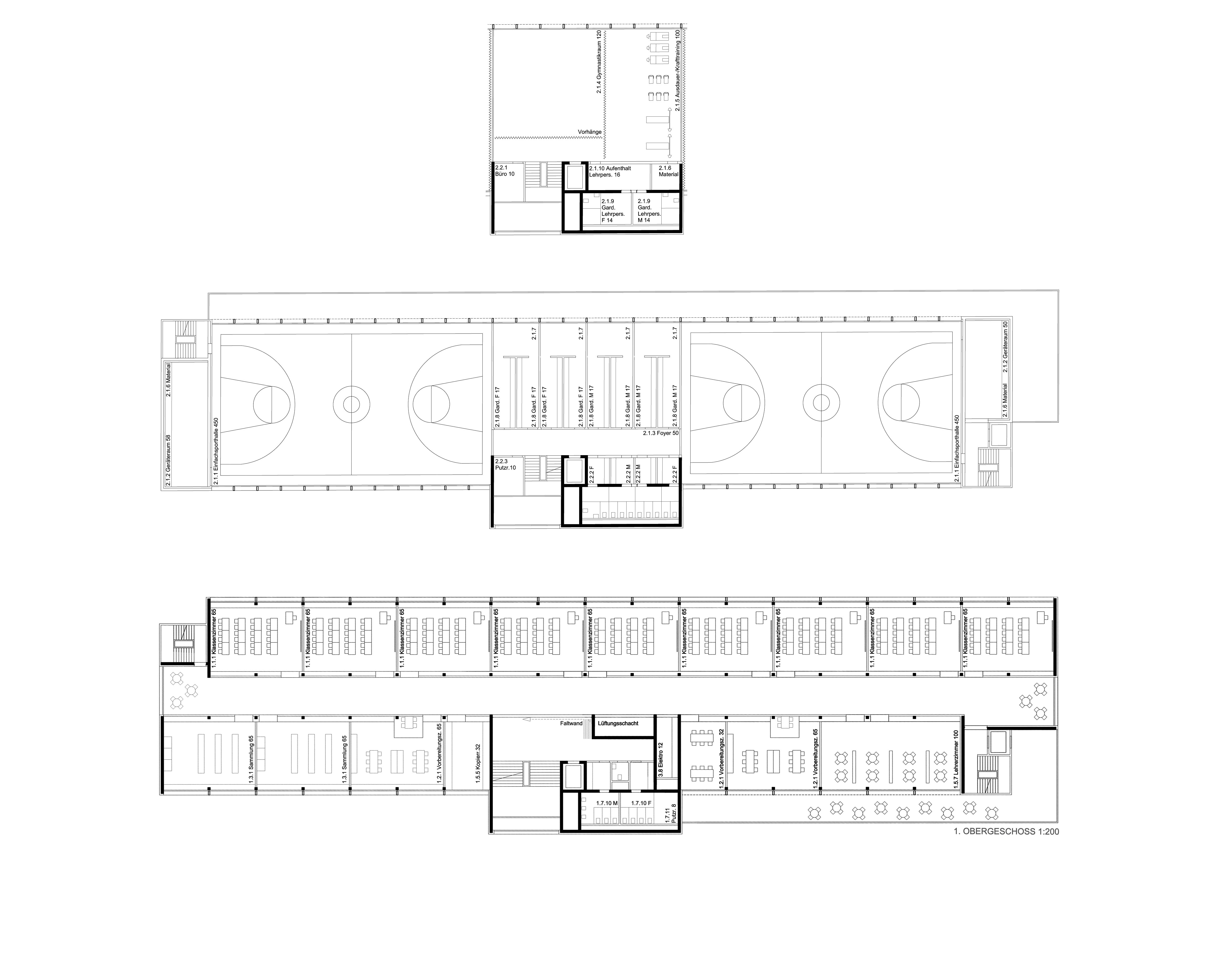
Unterrichtsräume
Aufenthalts-/ Mehrzweckräume
Verwaltung
Turnhallen
Bauingenieure:
Schnetzer Puskas Ingenieure Zürich
HLKS/Brandschutz:
Hans Abicht AG Zug
Landschaftsarchitekten:
Bryum Landschaftsarchitektur Basel
Projektteam:
Renzo Bader, Lucrezia Rapillo,
Magdalena Winiarz
Auftraggeber:
Hochbauamt Kanton Zürich