
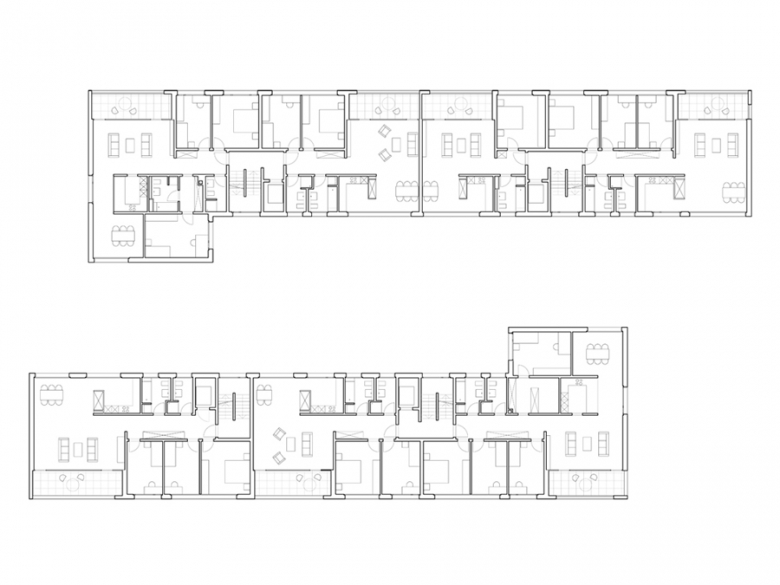
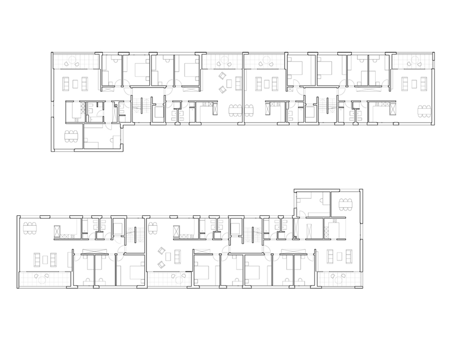
GUTHIRTHOF ZUG 2009
Ausführung durch Generalunternehmung
Landschaftsarchitekten:
Appert Zwahlen Partner AG
Wohnen
Gewerbe
Projektteam:
Renzo Bader, Gamal Rasmy
Bauherrschaft:
Seelsorgestiftung Guthirt
Baukosten:
ca. 21 Mio. CHF
Bauzeit:
18 Monate









