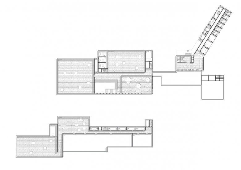
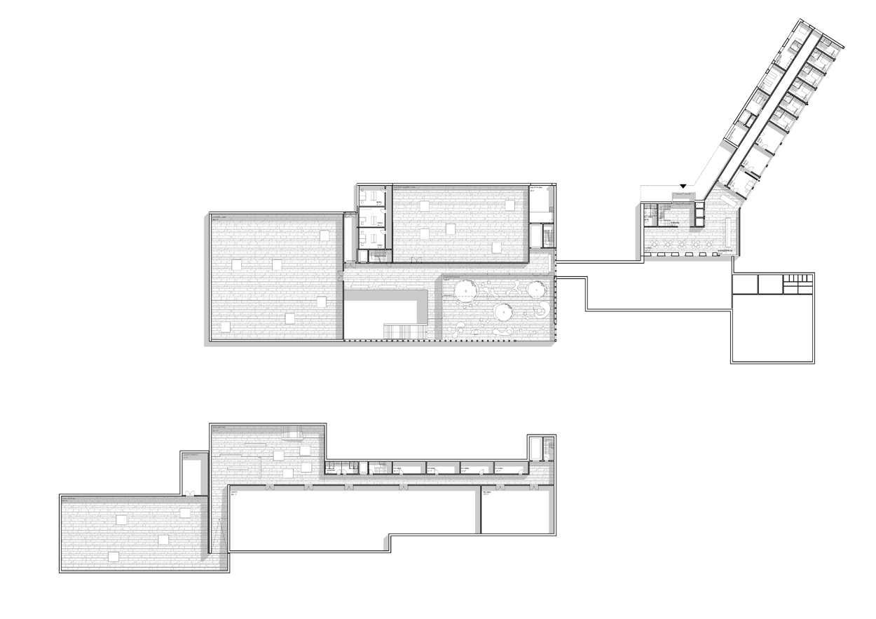
KANTONSSPITALAREAL ZUG 2012

Eingeladener Studienauftrag 1. Rang

Landschaftsarchitekten:
Fontana Landschaftsarchitektur GmbH

Kunsthaus
Restauration
Hotel
Gewerbe
Wohnen
Alterswohnen
Projektteam:
Renzo Bader, Balazs Szoeke,
Andrea Kulcsar
Auftraggeber:
Baudirektion Kanton Zug