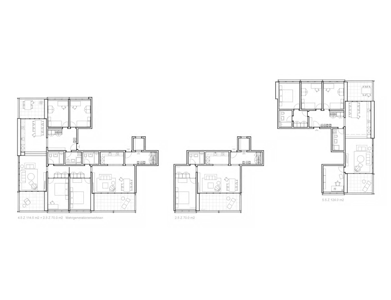
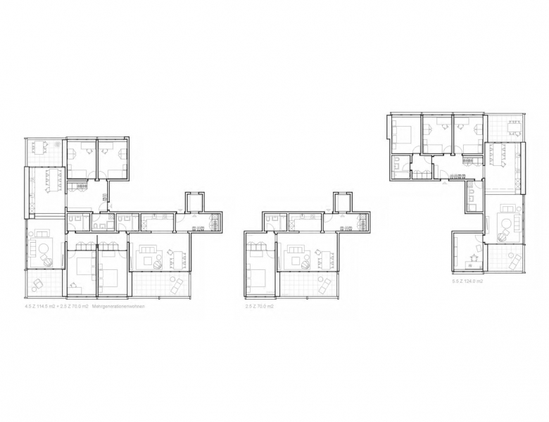
ZURLAUBENHOF ZUG 2013

Projektwettbewerb mit Präqualifikation

Landschaftsarchitekten:
Fontana Landschaftsarchitektur GmbH

Wohnüberbauung
Projektteam:
Renzo Bader, Kristijan Barun, Miguel Setas
Auftraggeber:
Familie Bossard