
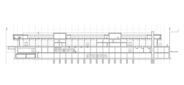
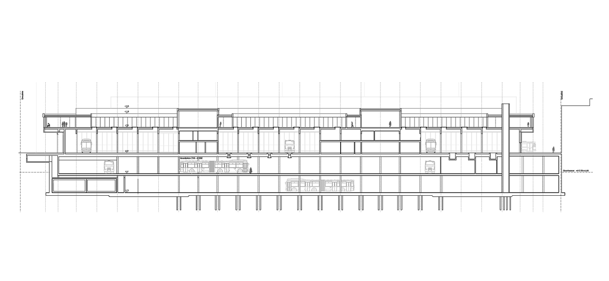
ZUGERLAND VERKEHRSBETRIEBE 2013
Projektwettbewerb mit Präqualifikation
Bauingenieure:
Jürg Conzett, Conzett Bronzini Gartmann AG Chur
Stützpunkt ZVB
Infrastruktur
Projektteam:
ARGE Renzo Bader Architekten AG Zug,
smarch Bern, Stücheli Architekten AG Zürich
Auftraggeber:
ZVB








